PROJECT:

BUNGALOW RENOVATION

LOCATION:

VA HIGHLANDS, GA

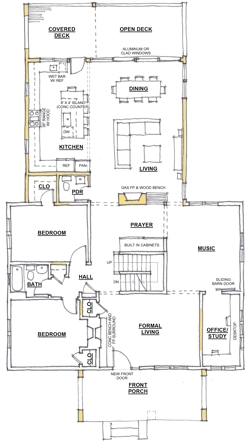
Modern renovation and addition to an original Virginia Highlands bungalow to include a new master suite, living space, kitchen, and lower level garage.

Back to All Projects