PROJECT:

RIVER HOUSE

LOCATION:

NORTH GEORGIA

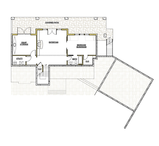
Rustic river house on the Chattahoochee River in North Georgia. Program includes an open living area, guest suite, and storage area for recreational equipment.

Back to All Projects