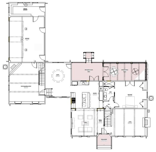
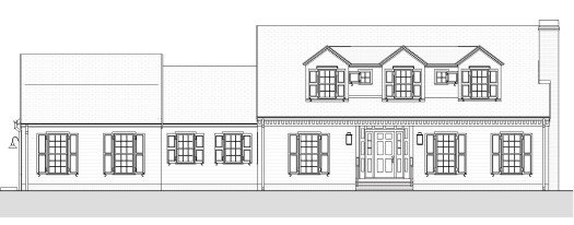
PROJECT:

CAPE RENOVATION

LOCATION:

ATLANTA, GA

Cape style renovation and addition in the Buckhead area. Features a new open concept plan and Nantucket dormers for additional living space on the second floor.

Back to All Projects